ADAUGĂ PRODUSUL ÎN COȘ ȘI ALEGE PRODUSUL SURPRIZĂ

KRATKI.PL MBZ130 Deschidere Verticala

KRATKI.PL
18.620,00 Lei 14.899,00 Lei
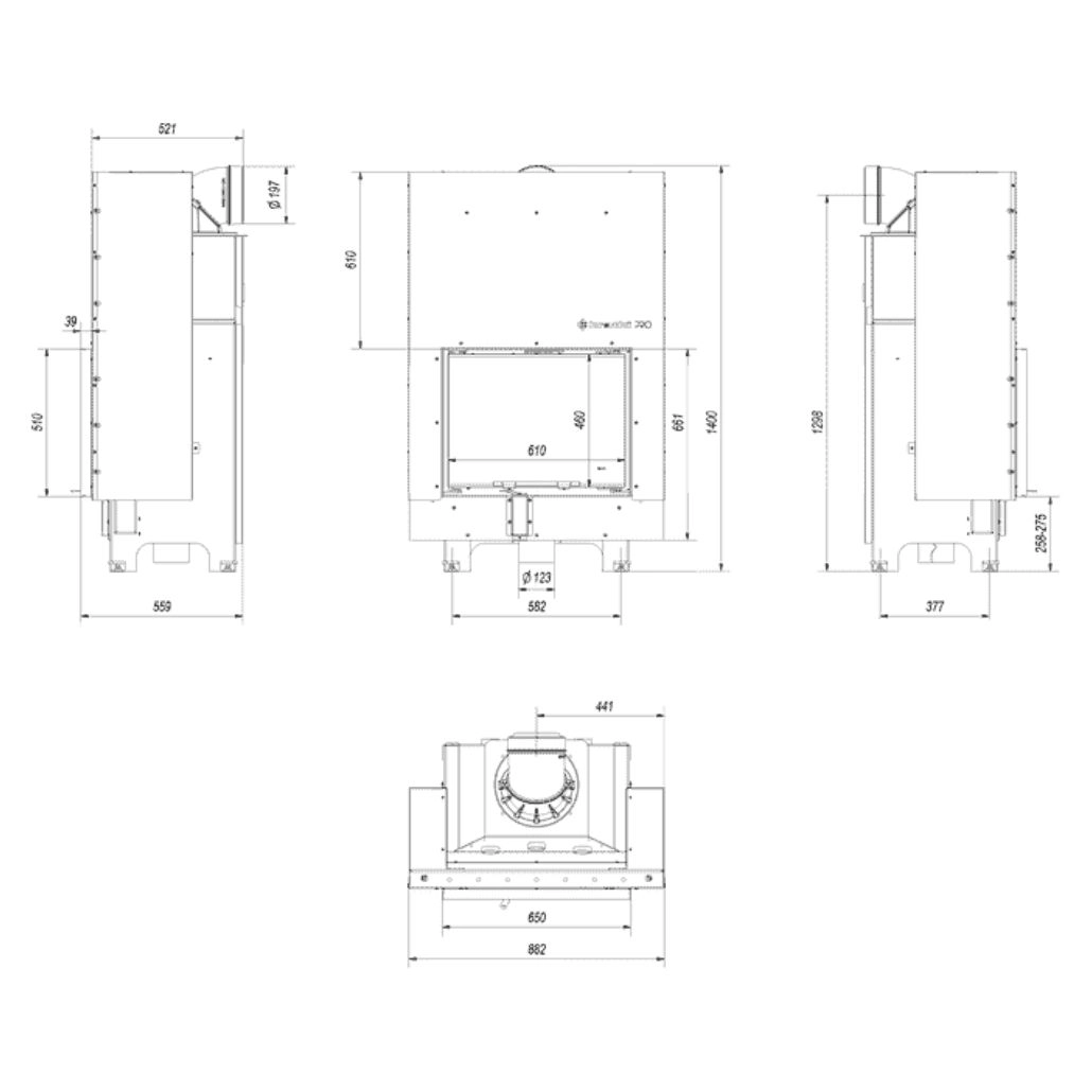
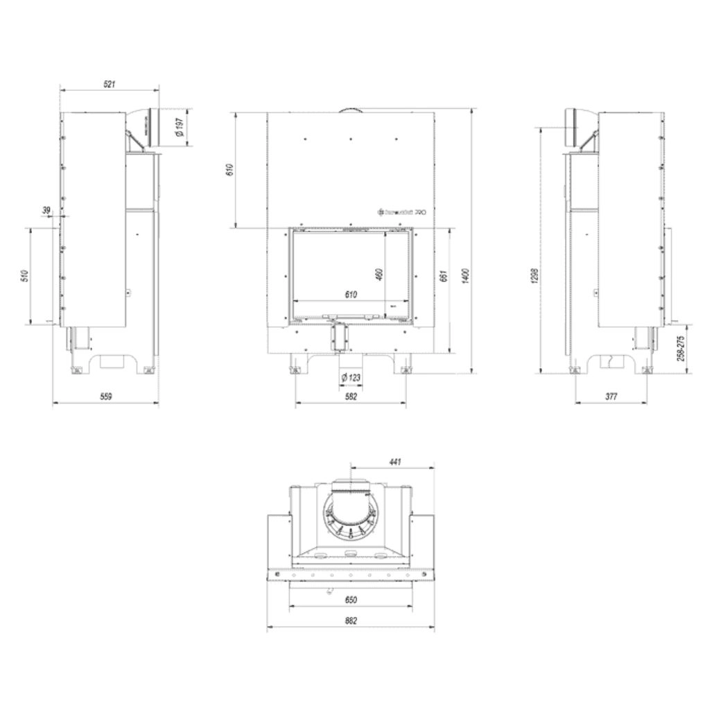
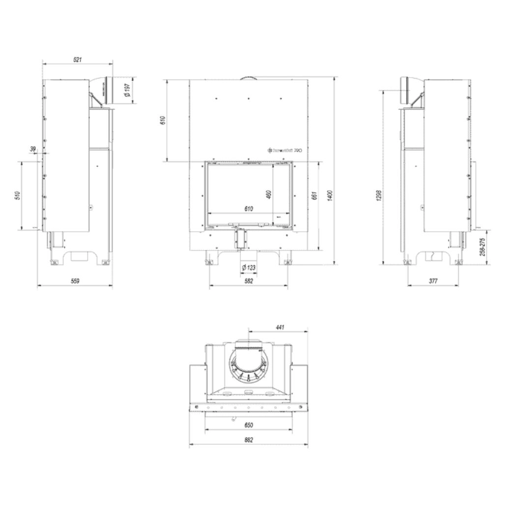
Focarul este prevazut cu deschidere verticala, prin glisarea usii, oferind un plus de confort acestuia. Usa este prevazuta si cu deschidere standard, orizontala, pentru o curatare usoara a sticlei. Focarul este echipat la nivelul conului cu sistem de recuperare a caldurii, compus din tevi orizontale ce preiau din caldura gazelor de evacuare, crescand eficienta acestuia. Datorita samotei din interior si a sistemului de ardere pe vatra, procesul de ardere al lemnului este mai complet, rezultand reziduri de cenusa reduse. Pe conul focarului este amplasata o evacuare reglabila la 360 grade, pentru o racordare facila a acestuia la cosul de fum.
In stoc furnizor

Durata de livrare: 1-8 saptamani

Limita stoc
Adauga in cos
Cod Produs: MBZ/G/BLACK-6425 Ai nevoie de ajutor? 0756292792
Adauga la Favorite Cere informatii
  • Descriere
  • Review-uri (0)

Specificații

12 Kw (90-120 mp)

16 kw

81 %

A

BImSchV 2 (Germania), Art. 15a B-VG (Austria)

Tripla combustie

Otel + Samota Pro

Verticala

Standard

610x460 mm

200 mm

≥ 700 cm2

≥ 900 cm2

lemn esenta tare (umiditate max ≤ 20%)

500 mm

235 C

270 Kg

Gri

- Otel refractar de inalta calitate cu o compozitie ridicata de carbon pentru o rezistenta ridicata la temperaturi inalte
- Captusit la interior cu samota, cu densitate mare, si rezistenta termica de pana la 1000grC. Rezistenta mecanica mare, datorita procesului de uscare urmat de cel de ardere.
- sticla decorativa grafitata (contur negru) care ofera un aspect modern si elegant

5 ani

Eco Design

- Prevazut cu tevi, in conul focarului, pentru recuperarea suplimentara a caldurii din gazele de evacuare.
- Ardere pe vatra pentru reziduri de cenusa cat mai scazute.
- Picioare reglabile pentru ajustare, pozitionare si fixare optima.
- Deflector pentru extinderea traseului fumului si imbunatatirea schimbului termic
- Dotat cu admisie din exterior si interior

Focarul este prevazut cu deschidere verticala, prin glisarea usii, oferind un plus de confort acestuia. Usa este prevazuta si cu deschidere standard, orizontala, pentru o curatare usoara a sticlei. Focarul este echipat la nivelul conului cu sistem de recuperare a caldurii, compus din tevi orizontale ce preiau din caldura gazelor de evacuare, crescand eficienta acestuia. Datorita samotei din interior si a sistemului de ardere pe vatra, procesul de ardere al lemnului este mai complet, rezultand reziduri de cenusa reduse. Pe conul focarului este amplasata o evacuare reglabila la 360 grade, pentru o racordare facila a acestuia la cosul de fum.

Vezi mai mult Informatii conformitate produs
Daca doresti sa iti exprimi parerea despre acest produs poti adauga un review.

Review-ul a fost trimis cu succes.

Compara produse

Trebuie sa mai adaugi cel putin un produs pentru a compara produse.

A fost adaugat la favorite!

A fost sters din favorite!