13 kw (100-130 mp)
16 kw
7 kw
81 %
A
BImSchV 2 (Germania), Art. 15a B-VG (Austria)
Tripla Combustie
Pro
Verticala
Standard
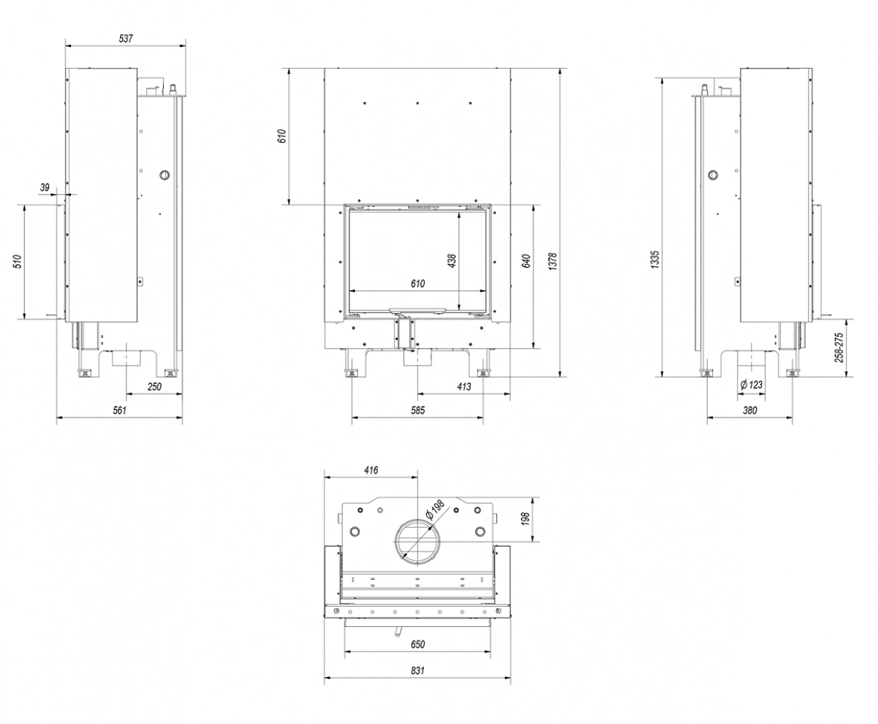
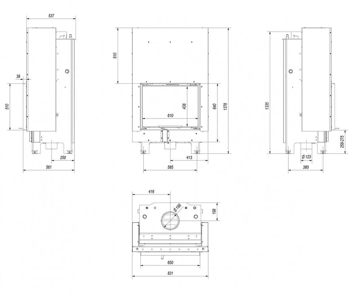
610x438 mm
200 mm
35 l
450 mm
Lemn de esenta tare uscat sub forma de bustean crapat
230 C
348 Kg
Negru
5 ani
- Otel refractar de inalta calitate cu o compozitie ridicata de carbon pentru o rezistenta ridicata la temperaturi inalte
- Captusala interioara TERMOTEC, material ce acumuleaza si ridica temperatura in interiorul focarului pentru o ardere mai eficienta
- sticla ceramica speciala care rezista fara probleme la temperaturi foarte ridicate
- sticla decorativa grafitata (contur negru) care ofera un aspect modern si elegant
- Se instaleaza in circuit inchis si necesita obligatoriu: - presiune maxima de lucru de 2 bar. - presiune maxima de incarcare la rece: 1-1.2 bar. - 2x supape de presiune instalate de max. 2,5 bar pe focar. - 2x aerisitoare pe focar. - supapa termica de 97 grade pe serpentina de racire - serpentina de racire se monteaza obligatoriu - vas de expansiune min. 10% din volumul de apa din instalatie. - vana de amestec (cu trei cai) sau bypass.
- Se instaleaza in circuit deschid si necesita obligatoriu: - vas expansiune deschis cu plutitor metalic.
- Se instaleaza in circuit deschid+inchis (cel mai sigur sistem) si necesita obligatoriu: - kit hidraulic cu pompe si schimbator in placi (vezi optiuni suplimentare) - vas expansiune deschis cu plutitor metalic.
- Prevazut cu tevi, in conul focarului, pentru recuperarea suplimentara a caldurii din gazele de evacuare.
- Ardere pe vatra pentru reziduri de cenusa cat mai scazute.
- Picioare reglabile pentru ajustare, pozitionare si fixare optima.
- Deflector pentru extinderea traseului fumului si imbunatatirea schimbului termic
- Necesita conectarea aerului de admisie extern
- Dotat cu admisie din exterior si interior
- Dotat cu serpentina de siguranta, pentru racirea focarului in cazul supraincalzirii.
Termosemineu din gama PRO, model samotat la interior cu randament crescut, autocuratare pe sticla si design modern cu sticla termorezistenta grafitata. Bazin de apa generos , ce se racordeaza la calorifere sau incalzire in pardoseala cu puffer si este prevazut cu tevi pentru recuperare caldura.
- Primi 5 metri se recomanda sa nu fie din PPR sau material compozit.
- Puffer de acumulare, pentru un randament mai bun (se dimensioneaza individual dupa marimea locuintei)
- Racordarea tur/retur se face pe diagonala.
- Mentinerea diametrului de racordare de pe focar pana la primul distribuitor.
- Controler electronic pentru admisia de aer si pompe
- A nu se testa la presiuni mai mari de 2 bar.
Mai multe informatii privind produsul
Parametri tehnici excelenti, precizie si atentie deosebita la fiecare detaliu
Sistem de tripla combustie a focarului: arderea primara directionata pe partea frontala a vatrei; arderea secundara se face tot cu aer proaspat adus prin ajutorul orificiilor amplasate pe peretele din spate a camerei de ardere. In plus a fost aplicat sistemul de curatare a sticlei cu aer proaspat din exterior preincalzit (perdea de aer).
Termosemineul este echipat cu schimbator de caldura in conul focarului compus din tuburi amplasate orizontal ce maresc suprafata de recuperare a caldurii, reducand temperatura gazelor de evacuare si crescand astfel eficienta si puterea dipozitivului in apa.
Procesul de ardere se desfasoara pe vatra (fara gratar) rezultand altfel o ardere cat mai completa si reziduuri de cenusa cat mai scazute. Energia termica obtinută din lemn de foc este exploatata la maxim.
Dotat cu serpentina de siguranta din cupru pentru protectie la supraincalzire (pene de curent, defectiuni pompa sau alte probleme) - intrare / iesire conector 1/2”.
Incinta termosemineului cat si usa sunt fabricate din otel refractar de inalta calitate cu o compozitie ridicata de carbon pentru o rezistenta ridicata la temperaturi inalte si durabilitate mare in timp.
Eficienta procesului de ardere, sticla mai curata si mentinerea temperaturii pentru un timp mai indelungat cu ajutorului captuselii de Accumote (samota) din interiorul camerei de ardere.
Sticla decorativa grafitata rezistenta la 800° C care ofera un aspect modern si elegant, largind vizual partea frontala a focarului.
Termosemineul este echipat cu racord pentru admisie a aerului din exterior de fi 125mm.
Mai usor de montat multumita picioarelor reglabile.
Etansari perfecte conform sudurilor solide realizate într-un ecran protector cu gaze nobile.
Reglarea aerului se face cu usurinta doar prin actionarea unui singur regulator care impiedica o utilizare necorespunzatoare.
Depuneri de funingine reduse cu ajutorul sistemului de curatare a sticlei (perdea de aer).
Maner elegant si confortabil de deschidere a usii.
Aprinderea corectă a focului într-un șemineu nu doar că îmbunătățește eficiența arderii, dar contribuie și la reducerea emisiilor de fum și protejarea mediului. În acest articol, vom explora pașii esențiali pentru a aprinde corect focul, precum și câteva sfaturi utile pentru o ardere de durată și sigură. 1. Alege lemnele potrivite Calitatea lemnului...
Citeste mai mult
Atunci când vine vorba de încălzire pe lemne, mulți dintre noi se confruntă cu dilema alegerii între sobă și șemineu. Fiecare opțiune are propriile avantaje și dezavantaje, iar decizia finală depinde de nevoile și preferințele individuale. În acest articol, vom explora caracteristicile ambelor sisteme de încălzire pentru a te ajuta să determini ce ți se potrivește...
Citeste mai mult
Misiunea noastră este să oferim produse de cea mai înaltă calitate la prețuri accesibile, pentru ca clienții noștri să poată obține performanță termică fără a-și depăși bugetul. Ne propunem să prezentăm șemineul drept o soluție termică eficientă, economică și prietenoasă cu mediul înconjurător. Suntem mereu dedicați extinderii gamei noastre de produse, care este extrem de diversificată și cuprinzătoare, căutând...
Citeste mai mult
Remdar.ro - Suntem specializați în montajul coșurilor de fum și șeminee în Iași , și recent am adus această expertiză în oraș pentru a vă oferi cele mai bune soluții pentru confortul și siguranța casei dumneavoastră. Vă invităm să descoperiți cum lucrăm și ce produse premium avem de oferit pentru locuința dumneavoastră. Serviciile noastre: Montajul Coșurilor de Fum & Seminee: Contact : Ne puteți...
Citeste mai mult
Bine ați venit pe blogul nostru dedicat sobei Enyo 6-8KW - o bijuterie de tehnologie și eficiență în încălzirea locuinței tale. Vom explora toate caracteristicile și beneficiile acestei sobe ultra moderne, de la designul său elegant până la performanța sa impresionantă. Sparkstone.ro +40 756 292 792 1. Specificații Tehnice Design și Dimensiuni: Inaltime: 134.4 cm Adancime: 38.3 cm Latime: 49.4...
Citeste mai mult
Bun venit pe sparkstone, blogul nostru dedicat aprinderii și întreținerii eficiente a semineelor! În această comunitate virtuală, vom explora împreună secretele pentru a transforma o seară obișnuită într-o experiență plăcută, relaxantă și călduroasă. Să începem prin a descoperi importanța unei aprinderi corecte și a întreținerii semineului tău. Etape...
Citeste mai mult
Cu venirea magiei sărbătorilor de iarnă, inimile noastre se încălzesc la gândul clipei petrecute în fața semineului, sub lumina dansantă a flăcărilor. Crăciunul aduce cu el nu doar zăpada strălucitoare și spiritul generos, ci și o oportunitate minunată de a crea amintiri de neuitat în căldura caminului tău. Imaginează-ți un colț al casei tale unde răsare o atmosferă caldă și primitoare, sub îndrumarea...
Citeste mai mult
Bine ai venit în universul căldurii plăcute și a eficienței energetice! Aici, la Sparkstone, te invităm să explorezi avantajele fascinante ale termosemineelor și să descoperi cum aceste dispozitive redefinesc modul în care ne încălzim locuințele. Termosemineele nu sunt doar surse de căldură, ci reprezintă o soluție modernă pentru a aduce confort în casele noastre. Iată câteva dintre beneficiile deosebite...
Citeste mai mult
Căutați experți în montaj cosuri de fum sau doriți să aduceți o notă de eleganță și căldură casei dumneavoastră cu un șemineu spectaculos? Sunteți în locul potrivit! Cu o vastă experiență în domeniul construcțiilor și finisajelor de calitate, oferim servicii profesionale de montaj cosuri de fum din inox și ceramică, precum și montaj seminee și sobe în județele Galati. Constanta. Iasi. Tulcea....
Citeste mai mult
In lumea designului interior, nimic nu emana atat de multa caldura, eleganta si confort ca o semineu premium. Este o afirmatie despre rafinamentul estetic, despre bucuria incalzirii casei cu un simbol al traditiei si despre crearea unei atmosfere deosebite in orice spatiu. Dintre numeroasele optiuni disponibile, Hoxter s-a impus ca un nume de referinta in materie de seminee de lux, oferind o combinatie sublima intre designul contemporan si tehnologia...
Citeste mai mult
Bine ați venit în lumea căldurii și eleganței! Esti in căutarea celor mai bune focare pentru locuința ta? Ai ajuns la locul potrivit. În acest articol, vom explora cele mai recente inovații în tehnologia de încălzire și designul deosebit al focarelor, prezentându-vă topul cinci modele de focare care sunt la mare căutare în acest moment. Indiferent dacă sunteți în căutarea unui focar cu eficiență...
Citeste mai mult
Descriere : Descoperă avantajele semineelor moderne și tradiționale și găsește inspirație pentru alegerea unui semineu care să se potrivească perfect cu personalitatea și stilul casei tale. Introducere: Când vine vorba de a adăuga căldură și farmec unei locuințe, semineele sunt mereu în tendință. Cu toate acestea, alegerea între un semineu modern și unul tradițional poate fi o decizie importantă. În...
Citeste mai mult
Newsletter
Nu rata ofertele si promotiile noastre
Compara produse
Trebuie sa mai adaugi cel putin un produs pentru a compara produse.